|
|
|
|
歡迎您在這里留言,我們將對您的意見和 各種反 饋信息予以回復(fù),希
望我們的留言給您帶來幫助
。感謝您對我們的支
持和厚 愛。[進入系統(tǒng)] |
|
|
|
|
|
|
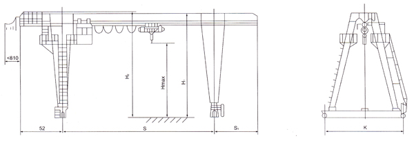
MH型電動葫蘆門式起重機 | 
起重量
|
t
|
5
|
10
|
起升高度
|
m
|
8
|
9
|
工作級別
|
A5
|
A5
|
跨度
|
m
|
13
|
15
|
18
|
22
|
26
|
30
|
13
|
15
|
18
|
22
|
26
|
30
|
起重機總重
|
t
|
15.8
|
17.2
|
18.8
|
21.2
|
23.8
|
27.1
|
20.4
|
22.1
|
24.2
|
27.8
|
31.7
|
35.9
|
輪壓
|
t
|
8.4
|
8.7
|
9.1
|
9.9
|
10.3
|
10.8
|
12
|
12.5
|
13.2
|
14.2
|
15.4
|
16.8
|
起重機運行
|
運行速度
|
m/min
|
26.7
|
24.2
|
24.7
|
電動機
|
型號
|
YZR132M1-6
|
YZR132M2-6
|
YZR132M2-6
|
YZR160M1-6
|
功率
|
Kw
|
2.2x2
|
3.7x2
|
3.7x2
|
5.5x2
|
轉(zhuǎn)速
|
R.P.M
|
906
|
906
|
906
|
930
|
電動葫蘆
|
速度
|
起升
|
m/min
|
8
|
7
|
運行
|
m/min
|
20
|
20
|
起重電動機
|
功率
|
kw
|
7.5
|
13
|
轉(zhuǎn)速
|
R.P.M
|
1400
|
1400
|
電流
|
A
|
16.5
|
28
|
運行電動機
|
功率
|
kw
|
0.8
|
0.8x2
|
轉(zhuǎn)速
|
R.P.M
|
1380
|
1380
|
電流
|
A
|
2.2
|
2.2x2
|
主要尺寸
|
S1
|
mm
|
4000
|
6000
|
4000
|
6000
|
S2
|
4000
|
6000
|
4000
|
6000
|
H1
|
8000
|
8300
|
8600
|
10400
|
10600
|
10800
|
H2
|
8500
|
9000
|
10900
|
11200
|
K
|
5000
|
6500
|
6500
|
7500
|
適用軌道
|
38kg/m 43kg/m
|
|
|
|  |
|
|
|