|
|
|
|
歡迎您在這里留言,我們將對您的意見和 各種反 饋信息予以回復,希
望我們的留言給您帶來幫助
。感謝您對我們的支
持和厚 愛。[進入系統(tǒng)] |
|
|
|
|
|
|
LH型16/5~20/5噸電動葫蘆雙梁橋式起重機 | 
起重量
|
t
|
16/5
|
20/5
|
跨度(S)
|
s
|
13.5
|
16.5
|
19.5
|
22.5
|
13.5
|
16.5
|
19.5
|
22.5
|
輪壓
|
t
|
13.6
|
14.1
|
14.9
|
15.5
|
14.2
|
14.8
|
15.4
|
16.0
|
重量
|
地面操縱
|
kg
|
12.26
|
14.6
|
16.8
|
19.2
|
12.68
|
14.88
|
17.22
|
19.68
|
操縱室開式
|
12.76
|
15.1
|
17.3
|
19.7
|
13.18
|
15.38
|
17.22
|
20.18
|
操縱室閉式
|
12.85
|
15.2
|
17.4
|
19.8
|
13.27
|
15.47
|
17.81
|
20.27
|
工作制度
|
A5
|
A5
|
速度
|
起升
|
m/min
|
6/8
|
6/8
|
小車運行
|
20
|
20
|
大車運行
|
地面
|
30
|
30
|
操縱室
|
45
|
45
|
電動機
|
起升
|
型號/功率KW
|
ZDx51-6/18.5/ZD141-4/7.5
|
ZDx51-4/18.5/ZD141-4/7.5
|
小車運行
|
ZD122-4/1.5
|
ZD122-4/1.5
|
大車運行
|
地面
|
YZR132M2-6
|
YZR132M2-6
|
操縱室
|
YZR160M1-6
|
YZR160M1-6
|
電動葫蘆
|
型號
|
|
HC16
|
HC16
|
起升高度
|
m
|
6,12,18,24
|
9,12,18,24
|
工作制度
|
JC=25%
|
JC=25%
|
電源
|
三相交流 50HZ 380V
|
三相交流 50HZ 380V
|
適用大車軌道
|
43kg/m
|
43kg/m
|
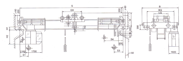
主要尺寸
|
B
|
mm
|
4720
|
4020
|
BQ
|
4000
|
4000
|
BX
|
2400
|
2400
|
LQ
|
2000
|
2000
|
H
|
1400
|
1430
|
H1
|
178
|
328
|
478
|
628
|
178
|
328
|
478
|
628
|
778
|
H2
|
2040
|
2040
|
H3(H4)
|
385(187.5)
|
348(224.5)
|
S1(S3)
|
1590(820)
|
1630(980)
|
S2(S4)
|
1470(2240)
|
1690(2340)
|
| 上一頁:LH型5~10噸電動葫蘆雙梁橋式起重機
|  |
|
|
|